Indietro
Aggiungere alla selezione

Appartamento
Tremezzina

  • Ref. 456
  • 2 camere
  • 2 bagni
  • 75 m²
  • 315 000 €

splendido tre locali e servizi con giardino e posto auto

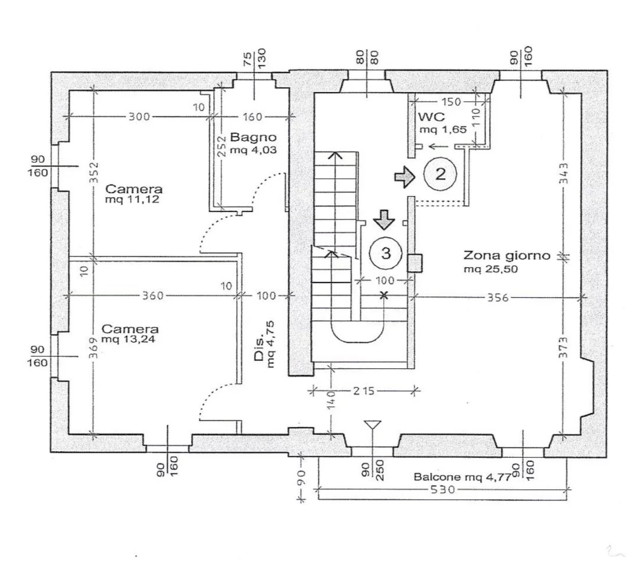
Tremezzina, località Lenno, in casa composta da sole tre unità abitative recentemente ristrutturata a nuovo, disponiamo di soleggiato appartamento posto al piano primo e composto da tre locali oltre servizi, balcone, giardino di proprietà, portico ad uso ripostiglio-taverna e posto auto esterno di proprietà. L'appartamento si dispone nel seguente modo: ingresso con soggiorno e angolo cottura, un piccolo bagno di servizio e balcone; tramite un disimpegno si accede alla zona notte dove troviamo una camera matrimoniale, una cameretta ed il bagno padronale con box doccia. L'appartamento è stato recentemente ristrutturato completamente a nuovo e non necessita di alcun intervento di manutenzione. La pavimentazione in ceramica monocottura è posata in diagonale, gli infissi doppio vetro pvc-alluminio contribuiscono ad un notevole risparmio sulle spese di riscaldamento così come il cappotto termico posato sul lato meno esposto dello stabile; il portoncino d'ingresso è di tipo blindato. L'immobile inoltre è dotato di caldaia a condensazione ed impianto wi fi. Il giardino di proprietà di ca 80mq posto al piano terra completo di impianto di irrigazione, permette di passare ore di relax all'aria aperta. La soluzione è infine completata da un ampio locale taverna a ridosso del giardino utile come zona bbq e/o ricovero attrezzi ed un ampio posto auto scoperto di proprietà. L'appartamento viene ceduto comprensivo dei mobili della cucina comprensivo di elettrodomestici, mobili della camera matrimoniale e della cameretta. Termoautonomo!
La richiesta della proprietà ammonta ad € 315.000,00
Per ulteriori informazioni o per fissare un sopralluogo non esitate a contattare l'agenzia.

Stampare l'annuncio

Sommario

  • Locali 3 locali
  • Superficie 75 m²
  • Superficie totale 85 m²
  • Riscaldamento Radiatore, Gas, Autonomo
  • Acqua calda Caldaia
  • Used water Fognatura
  • Condizione Ottime condizioni/ristrutturato
  • Piano 1° / 3 piani
  • Esposizione Est Ovest Sud
  • Vista Montagne Lago
  • Anno di ristrutturazione 2021
  • Disponibilità Libero

Prestazioni

  • Aria condizionata
  • Arredato
  • Doppi vetri
  • Finestra alluminio
  • Finestra PVC
  • Internet
  • Termostato connesso
  • Barbecue
  • Illuminazione esterna
  • Recintato
  • Sistema di irrigazione
  • Porta blindata

Locali

Piano terra

  • 1 Portico 15 m²
  • 1 Posto auto esterno 20 m²
  • 1 Giardino 80 m²

  • 1 Soggiorno con cucina 26 m²
  • 1 Disimpegno 8 m²
  • 1 Camera da letto padronale 14 m²
  • 1 Camera da letto 12 m²
  • 1 Bagno 4 m²
  • 1 Bagno / WC 2 m²
  • 1 Balcone 5 m²

Prossimità

  • Aeroporto 60 chilometro
  • Asilo nido 2 chilometro
  • Autobus 50 metro
  • Autostrada 10 chilometro
  • Lago 50 metro
  • Negozi 300 metro
  • Ospedale/Clinica 15 chilometro
  • Palestra 3 chilometro
  • Parcheggio pubblico 100 metro
  • Piscina pubblica 5 chilometro
  • Piste da sci 16 chilometro
  • Scuola elementare 2 chilometro
  • Scuola media/superiore 3 chilometro
  • Spiaggia 50 metro
  • Strada principale 20 metro

Efficienza energetica

Indice prestazione energetica (EPI) Attestato Prestazione Energetica (APE)

Cliccando su « Accetto », autorizzate l’utilizzo dei cookies per garantirvi una consultazione ottimale di questo sito.

Maggiori informazioni Accetto